Ricerca rapida
Codice
Tipologia
Categoria
Città
Zona
Descrizione
Prezzo (da - a)
-
Mq (da - a)
-
Ordine
Cerca
Scheda Immobile

Zanica - Villa

Codice V001319
Urgnano, 5 minuti da Zanica, INTROVABILE VILLA SINGOLA SU UNICO PIANO ABITATIVO + AMPIO INTERRATO DIVISO FRA CANTINA/TAVERNA DA 60MQ E BOX TRIPLO IN LARGHEZZA DA 53MQ!!!

COMPLETAMENTE PERSONALIZZABILE SULLA BASE DELLE ESIGENZE DEL CLIENTE PER LA DISPOSIZIONE DEI TAVOLATI INTERNI, LE FINISTRATURE, LE FINITURE INTERNE ED ESTERNE.

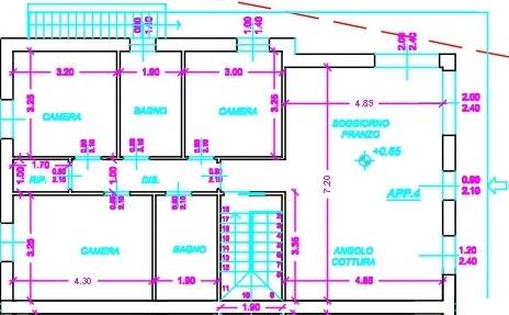
URGNANO, nuova villa singola di prossima edificazione sviluppata su unico livello a piano terra di ben 113mq con tipologia quadrilocale (3 camere, 2 bagni finestrati al piano, ripostiglio, soggiorno e cucina).

Risulta ovviamente libera sui 4 lati, completamente indipendente e con area esterna di proprietà esclusiva pari a circa 480mq di cui 380mq di giardino e 100mq di corsello carrabile.

L'interrato è accessibile con scala interna in muratura dove è presente una grande cantina di 60mq oltre ad intercapedine a giro di ulteriori a 25mq a garantire il massimo isolamento termico. Inoltre, box TRIPLO IN LARGHEZZA, praticamente introvabile, da circa 53mq con 2 portoni di accesso.
Si precisa che la cantina viene venduta al rustico ma con le predisposizioni per la sua successiva finitura (con possibilità ricavarne taverna e bagno/lavanderia).

Ottimo il capitolato delle opere e delle finiture interne che rispecchia la pluriennale esperienza dell'impresa costruttrice che si è sempre distinta per offrire alla sua clientela un prodotto di grande qualità in grado di mantenere prestazioni e valore nel tempo.

Particolare attenzione sarà posta alla coibentazione per evitare anche i ponti termici, ma anche all'isolamento acustico per evitare la diffusione di rumori fra le unità abitative grazie all'utilizzo di specifiche tecniche costruttive e materiali fonoassorbenti. Certificazione energetica valore di progetto previsto minimo in classe A2 (probabile A3/A4 definitivo dopo il fine lavori).

La villa è pensata per offrire il massimo confort abitativo ai clienti con possibilità di personalizzazione per quanto riguarda la disposizione degli spazi interni e le finiture sempre partendo da un capitolato di ottimo livello.

Struttura portante in cemento armato, tavolati interni in muratura, isolamento a cappotto, serramenti in PVC con profili sottili a basso emissivo con gas Argon e zero manutenzione, avvolgibili in alluminio motorizzati con predisposizione per integrazione con impianto di domotica.
Pavimenti e rivestimenti 40€/mq posati, sanitari sospesi, videocitofono, impianto satellitare, riscaldamento a pavimento con impianto a pompa di calore (con possibilità gestire anche il raffrescamento con split idronici o, con sovrapprezzo, a pavimento), VMC (ventilazione meccanica controllata), impianto fotovoltaico 4,5kw/come previsto ex legge 10/91 (no metano), etc.

Prezzo richiesto 498.000€

Per maggiori informazioni 347 89 15 337
Rendering (in particolare quelli degli esterni) descrizione e progetti pubblicati sono da intendersi a titolo indicativo e non vincolanti contrattualmente in quanto la villa risulta ancora completamente personalizzabile
Prezzo
498.000,00 EUR
Mq
113
Classe
A4
Locali
6
Camere
3
Bagni
2
Box
3
Mq Box
53
Mq Giardino
380
Mq Balcone
10
Stato Immobile
Prossima Realizzazione
Grado
Signorile
Piano
Piano Terra
Orientamento
Nord Ovest Sud Est
Totale Piani
Uno
Lati Liberi
4
Giardino
Privato
Riscaldamento
Autonomo
Tipo Riscaldam.
Pompa di Calore
Tipo Impianto
Pavimento
Fonte Energetica
Fotovoltaico
Acqua Calda
Autonoma
Raffrescamento
Split
Infissi
PVC Doppio Vetro
Persiana
Tapparella Metallo
Pavim. Giorno
Gres Porcellanato
Pavim. Notte
Gres Porcellanato
Pavim. Cucina
Gres Porcellanato
Pavim. Bagno
Gres Porcellanato
Cantina - Solaio
Cantina
Isolamento
Presente
Isolamento termico
Cappotto esterno
Isolamento acustico
Isolamento completo
VMC
Si
Accessori
Antifurto, Aria Condizionata, Cancello Elettrico, Doppi Vetri, Impianto Fotovoltaico, Impianto Satellitare, Lavanderia, Porta Blindata, Ripostiglio, Tapparelle Elettriche, Video Citofono
Richiedi informazioni
Compila questo modulo per inviarci una mail
di richiesta informazioni per questo immobile
Riferimento Immobile
Nominativo
Telefono
Email
Testo richiesta
Autorizzo contattarmi/inviarmi materiale pubblicitario/informativo inerente l’ambito commerciale per finalità promozionali oltre al trattamento dei miei dati personali in base al D.Lgs. n.196 del 30 giugno 2003 e Regolamento UE n. 679/2016 (Regolamento Generale sulla Protezione dei Dati) - Privacy Policy
Tutti i campi sono obbligatori
Invia
Cookie preference