Ricerca rapida
Codice
Tipologia
Categoria
Città
Zona
Descrizione
Prezzo (da - a)
-
Mq (da - a)
-
Ordine
Cerca
Scheda Immobile

Cologno al Serio - Villa, Villa Bifamiliare

Codice V001339
In nuovissimo contesto residenziale che si contraddistingue per gli ampi spazi aperti con INTROVABILI DISTANZE FRA LE VARIE UNITA' IMMOBILIARI DI CIRCA 30MT, si propone la realizzazione di ville singole e bifamiliari.

Inizio lavori previsto per settembre 2026 con consegna indicativa per ottobre 2027.

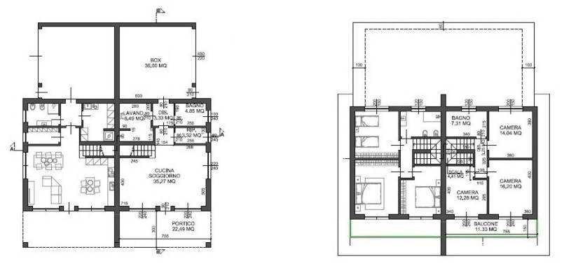
Le ville sono tutte di grandi dimensioni e sviluppate su 2 livelli fuori terra da circa 80mq ciascuno. Box doppi in larghezza da ben 43mq, giardini privati da circa 260mq (fino a 607mq per villa singola).

Il progetto è ancora personalizzabile sulla base delle esigenze abitative della clientela e prevede al piano terra grande zona giorno open space da circa 36mq calpestabili, grande lavanderia da 9mq, secondo bagno finestrato, ripostiglio, disimpegno che permette il comodo ingresso in casa anche direttamente dal box. Al piano superiore 2 camere matrimoniali, terza camera, terzo bagno, balcone a servizio di 2 camere da letto.

Ottime le finiture di capitolato che prevedono quanto segue:

Struttura antisismica in cemento armato, tamponamenti esterni in termolaterizio Poroton, cappotto, vespaio areato per evitare problematiche di umidità e gas Radon, copertura piana coibentata e impermeabilizzata con doppia guaina. All'interno le pareti perimetrali saranno contro paretate con doppia lastra di cartongesso e interposto isolamento termoacustico in lana di roccia per la miglior coibentazione possibile. Tramezzi interni sempre in cartongesso doppia lastra con al loro interno lana di roccia. Serramenti doppio vetro gas argon in PVC. avvolgibili motorizzati e coibentati, antigrandine in PVC. Certificazione energetica valore di progetto in A4.

Impiantistica di ultima generazione con pompa di calore alimentata da impianto fotovoltaico da 4,5kw per gestire il riscaldamento a pavimento. Predisposizione per raffrescamento a split idronici (che usano la stessa pompa di calore del riscaldamento). NO GAS.

Inoltre, impianto domotica di base per comandare le tapparelle motorizzate, predisposizione antifurto con telecamere, VMC installata in ogni vano con specifico impianto sul serramento, portone sezionale box coibentato e motorizzato, videocitofono, etc.

Circa 215mq commerciali totali parzializzati per le ville bifamiliari, ottimo rapporto qualità/prezzo/mq, per maggiori informazioni chiamare in studio per concordare appuntamento.

Rendering e planimetrie si devono intendere indicativi e non vincolanti contrattualmente.
Prezzo
Riservato
Mq
152
Classe
A4
Locali
4
Camere
3
Bagni
3
Box
2
Mq Box
43
Mq Giardino
260
Mq Balcone
12
Stato Immobile
Prossima Realizzazione
Grado
Signorile
Lati Liberi
3
Giardino
Privato
Riscaldamento
Autonomo
Tipo Riscaldam.
Pompa di Calore
Tipo Impianto
Pavimento
Fonte Energetica
Fotovoltaico
Acqua Calda
Autonoma
Raffrescamento
Predisposizione
Infissi
PVC Doppio Vetro
Persiana
Tapparella PVC
Pavim. Giorno
Gres Porcellanato
Pavim. Notte
Gres Porcellanato
Pavim. Cucina
Gres Porcellanato
Pavim. Bagno
Gres Porcellanato
Isolamento
Presente
Isolamento termico
Cappotto esterno
Isolamento acustico
Isolamento completo
VMC
Si
Accessori
Antifurto, Aria Condizionata, Cancello Elettrico, Doppi Vetri, Impianto Domotica, Impianto Fotovoltaico, Impianto Satellitare, Lavanderia, Piscina, Porta Blindata, Tapparelle Elettriche, Video Citofono
Richiedi informazioni
Compila questo modulo per inviarci una mail
di richiesta informazioni per questo immobile
Riferimento Immobile
Nominativo
Telefono
Email
Testo richiesta
Autorizzo contattarmi/inviarmi materiale pubblicitario/informativo inerente l’ambito commerciale per finalità promozionali oltre al trattamento dei miei dati personali in base al D.Lgs. n.196 del 30 giugno 2003 e Regolamento UE n. 679/2016 (Regolamento Generale sulla Protezione dei Dati) - Privacy Policy
Tutti i campi sono obbligatori
Invia
Cookie preference