Ricerca rapida
Codice
Tipologia
Categoria
Città
Zona
Descrizione
Prezzo (da - a)
-
Mq (da - a)
-
Ordine
Cerca
Scheda Immobile

Calcinate - Villa, Villetta schiera

Codice V001293
A Ghisalba, a circa 10 minuti da Calcinate:
4 NUOVE VILLE DISPOSTE SU UNICO PIANO, INTROVABILI SUL MERCATO!!!
La disposizione delle ville è stata pensata per offrire la MASSIMA PRIVACY sia dall'esterno che fra le 4 unità abitative.

In contesto con tipologia residence con praticamente zero spese condominiali. Consegna prevista per fine 2025/ inizio 2026 (3 mesi dalla sottoscrizione del contratto preliminare per permettere ai clienti la completa personalizzazione degli interni).

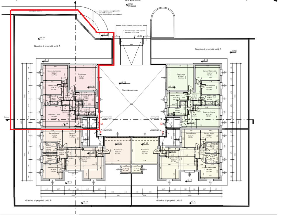
Le ville sono completamente indipendenti (in comune solo il grande corsello pedonale/carrale da circa 220mq).

Si dispongono su UNICO LIVELLO A PIANO TERRA da circa 120mq ciascuno oltre ai box doppi in larghezza da circa 33mq.Giardini privati da 250 a 200mq.

Ottime le finiture di capitolato che prevedono struttura portante in cemento armato, pareti esterne in poroton 25cm, con isolamento a cappotto in EPS con grafite e intercapedine con doppia lastra di cartongesso per eliminazione dei ponti termici, tavolati interni in doppia lastra di cartongesso con lana di roccia nell'intercapedine per il miglio isolamento termico/acustico, riscaldamento a pavimento con pompa di calore che gestisce anche l'impianto di raffrescamento con 5 split già installati, impianto di Ventilazione Meccanica Controllata (VMC), serramenti basso emissivo in PVC doppio vetro con gas argon, zanzariere già installate, tapparelle motorizzate in alluminio, impianto fotovoltaico 6kw (no metano), pavimentazioni di qualità con costo materiale pari a ben 40€/mq, portone box sezionale coibentato e motorizzato.
Nel capitolato è presente anche impianto di domotica che permette comandare gli impianti di riscaldamento e raffrescamento, le luci, le tapparelle motorizzate, etc. Il sistema è ampliabile ed è gestito in remoto da smartphone tramite applicazione.

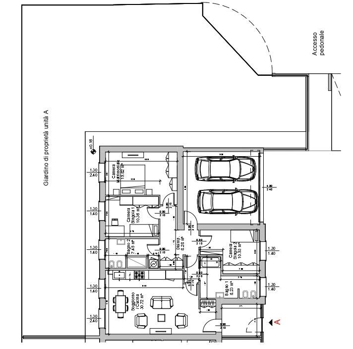
Villa A: giardino esclusivo di circa 250mq a giro sui tre lati della casa, soggiorno open space da 31mq calpestabili con zona cucina e pranzo a vista, disimpegno con accesso diretto al box doppio in larghezza, ripostiglio, 2 bagni finestrati, camera matrimoniale da quasi 16mq, altre 2 camere (totali 3).

Circa 175mq commerciali totali parzializzati, ottimo rapporto qualità/prezzo, richiesta 350.000€.

Per maggiori informazioni 347 89 15 337

P.S.: rendering, descrizione e planimetrie contrattualmente non vincolanti, certificazione energetica valore di progetto prevista in classe A3.
Prezzo
350.000,00 EUR
Mq
120
Classe
A3
Locali
4
Camere
3
Bagni
2
Box
2
Mq Box
33
Mq Giardino
250
Stato Immobile
Nuovo
Grado
Signorile
Panorama
Vista Aperta
Piano
Piano Terra
Orientamento
Est Nord Ovest
Lati Liberi
3
Giardino
Privato
Tipo Cucina
A Vista
Riscaldamento
Autonomo
Tipo Riscaldam.
Pompa di Calore
Tipo Impianto
Pavimento
Fonte Energetica
Fotovoltaico
Acqua Calda
Autonoma
Raffrescamento
Split
Infissi
PVC Doppio Vetro
Persiana
Tapparella Metallo
Pavim. Giorno
Gres Porcellanato
Pavim. Notte
Gres Porcellanato
Pavim. Cucina
Gres Porcellanato
Pavim. Bagno
Gres Porcellanato
Isolamento termico
Cappotto esterno
Isolamento acustico
Isolamento completo
Spessore cappotto (cm)
10
Accessori
Antifurto, Aria Condizionata, Cancello Elettrico, Doppi Vetri, Impianto Domotica, Impianto Fotovoltaico, Impianto Satellitare, Lavanderia, Porta Blindata, Ripostiglio, Video Citofono, Zanzariere
Richiedi informazioni
Compila questo modulo per inviarci una mail
di richiesta informazioni per questo immobile
Riferimento Immobile
Nominativo
Telefono
Email
Testo richiesta
Autorizzo contattarmi/inviarmi materiale pubblicitario/informativo inerente l’ambito commerciale per finalità promozionali oltre al trattamento dei miei dati personali in base al D.Lgs. n.196 del 30 giugno 2003 e Regolamento UE n. 679/2016 (Regolamento Generale sulla Protezione dei Dati) - Privacy Policy
Tutti i campi sono obbligatori
Invia
Cookie preference